Departamento en Venta en Villa Urquiza, Capital Federal, Buenos Aires USD 95.000 - EN VENTA
Descripción
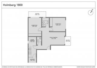
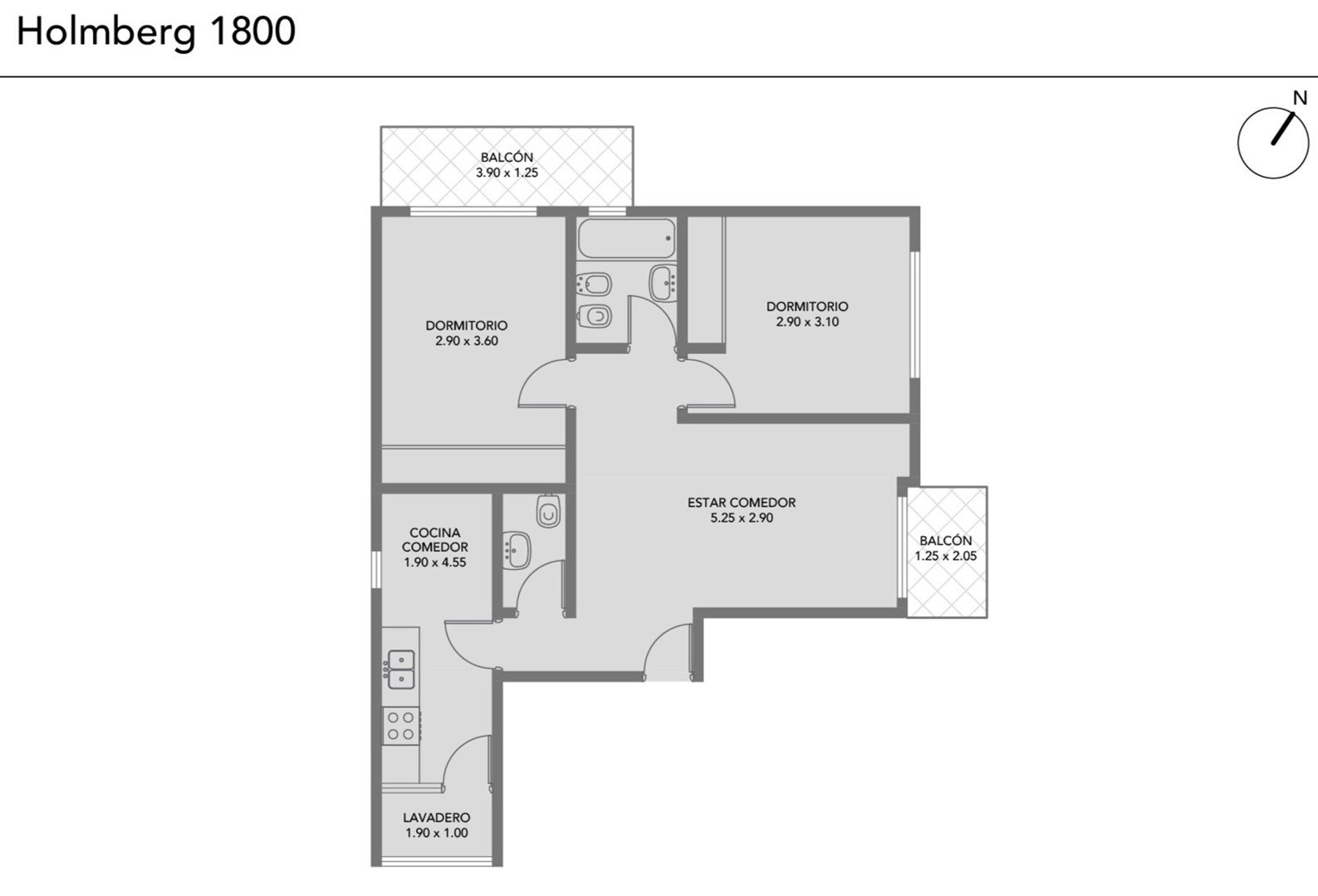
EDIFICIO CON ASCENSOR Departamento 3 ambientes en esquina con 2 balcones. Ingreso a hall de recepción. Toilette. Living comedor con salida a balcón con vista a la calle Holmberg (orientación este). Cocina independiente con espacio para pequeño comedor diario. Lavadero independiente. Hall de distribución. Dormitorio principal con placar empotrado y salida a un segundo balcón con vista a la calle Sucre (orientación Norte). Segundo dormitorio con placard empotrado. Baulera en subsuelo. Ubicado en pleno polo gastronómico y Corredor Doho. A 100 mts de Plaza Zapiola, a 500 mts de las Av. Álvarez Thomas, Olazabal y De los Incas y a 800 mts de la línea Subte B. Accesible: No (Ley 5.115). - - - Toda la información del aviso, incluyendo medidas, precio, impuestos, servicios, etc. son estimativos, sujetos a modificación y no vinculantes, según lo dispuesto en el art. 973, Cód. Civ. y Com. Toda la información del aviso, incluyendo medidas, precio, impuestos, servicios, etc. son estimativos, sujetos a modificación y no vinculantes, según lo dispuesto en el art. 973, Cód. Civ. y Com.
| Detalles | |
|---|---|
| Código | KP439702 |
| Categoría | Departamentos |
| Estado | Vendida |
| Ubicación | Holmberg 1888 |
| Zona | Villa Urquiza |
| Barrio | Villa Urquiza |
| Localidad | Capital Federal, Capital Federal |
| Tipo de operación | En venta |
| Apto credito | Sí |
| Ambientes | 3 |
| Dormitorios | 2 |
| Baños | 2 |
| Piso | 3 |
| Mts totales (mt²) | 66.56 |
| Mts cubiertos (mt²) | 60.41 |
| Mts no cubiertos (mt²) | 6.15 |
| Año de construcción | 1978 |
| Expensas | usd 17100.00 |